네포 센터의 더 아우렐리오 앳 록웰, 팜팡가의 변치 않는 매력과 만나다
팜팡가 부동산의 새로운 장
팜팡가 부동산 시장의 성장을 지켜보셨다면, 록웰이 탁월한 디자인과 지속적인 가치를 갖춘 커뮤니티를 어떻게 만들어왔는지 눈치채셨을 것입니다. 이제 네포 센터의 더 아우렐리오 앳 록웰과 함께, 현대적인 생활과 팜팡가 안헬레스 시의 풍부한 문화적 뿌리를 결합한 새로운 장의 일부가 될 기회를 갖게 됩니다.
마스터플랜 개발의 최신 추가작인 더 아우렐리오는 오늘날 주택 소유자, 콘도 거주자, 투자자들의 변화하는 요구를 반영하는 증거로 자리합니다.
네포 센터의 록웰 내에 위치한 더 아우렐리오는 편안함, 기능성, 그리고 시대를 초월한 디자인이 조화를 이루는 생활 경험을 제공하며, 완전한 도시 중심지의 편리함에도 손쉽게 접근할 수 있습니다.
팜팡가가 지속적으로 번영함에 따라, 록웰 앳 네포 센터는 안헬레스 시에서 다음 프리미엄 라이프스타일 목적지로 자리매김하고 있습니다.
함께, 이들은 지역사회 내 지속 가능한 성장과 새로운 가능성을 열어가는 무대를 마련하며, 더 아우렐리오는 이 여정에서 중요한 이정표를 표시합니다.

오랜 전통, 록웰의 완성
더 아우렐리오를 선택하는 것은 단순히 주거지를 확보하는 것을 넘어, 록웰 랜드의 오랜 유산 안에서 자리를 확보하는 것입니다.
30년이 넘는 기간 동안, 록웰은 완공 시 기대를 뛰어넘는 개발을 제공했을 뿐만 아니라 시간이 지나도 지속적으로 가치가 상승하는 프로젝트를 선보여왔습니다. 이러한 일관성은 정시 완공에 대한 확고한 약속에 기반하며, 모든 약속이 성실함과 탁월함으로 지켜지도록 보장합니다.
이 유산에서 똑같이 중요한 요소는 록웰의 완벽한 시공에 대한 헌신입니다.
모든 자재와 마감재는 내구성과 장기적 가치를 기준으로 신중하게 선택됩니다. 각 커뮤니티는 주민 간의 의미 있는 연결을 촉진하도록 정교하게 설계되어, 친밀하면서도 지속 가능한 이웃 환경을 만듭니다.
더 아우렐리오에서는 이러한 헌신이 단순히 주거 공간을 넘어 확장됩니다. 투자자를 지원하는 인하우스 임대 서비스, 커뮤니티 기준을 유지하는 인하우스 관리, 100% 비상 전력 및 급수 시스템을 통해 끊김 없는 편안함을 보장합니다.
여기에서는 단순히 주택을 구입하는 것이 아니라, 지속적인 가치와 마음의 평안을 위해 세심하게 조성된 환경에 투자하는 것입니다.
모든 중심에: 네포 센터 록웰의 최신 주거 빌딩, 더 아우렐리오
더 아우렐리오에서의 생활은 네포 센터 록웰의 독점적이고 자족적인 커뮤니티의 일부가 되는 것을 의미합니다.
여기서 주민들은 아라야트 산(Mount Arayat), 잠발레스 산맥(Zambales Mountain Range), 그리고 개발 단지의 중심 편의시설을 한눈에 감상할 수 있어, 자신이 집이라고 부르는 특별한 환경을 매일 상기하게 됩니다. 단지 전체 면적의 78%가 열린 공간으로 구성되어 있어, 휴식, 레크리에이션, 사교 모임을 위한 공간이 풍부하며, 도심에서는 좀처럼 느낄 수 없는 개방감을 제공합니다.
더 아우렐리오 입주 시점에는 팜팡가 안헬레스 시의 파워 플랜트 몰(Power Plant Mall)이 완전히 운영될 예정으로, 주민들은 문 앞에서 바로 선택된 쇼핑, 식사, 라이프스타일 경험을 즐길 수 있습니다.
자연, 편의성, 커뮤니티가 완벽하게 통합된 이 환경은, 장거리 통근의 부담 없이 일상적인 필요가 충족되는 완전한 생활 경험을 제공합니다.
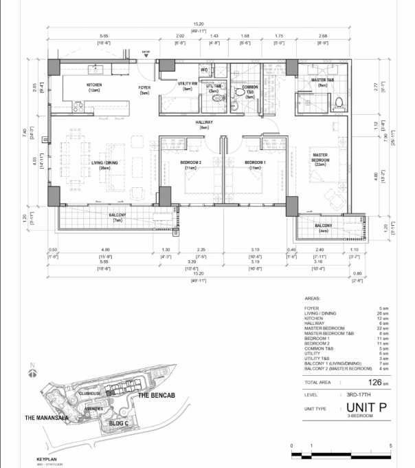
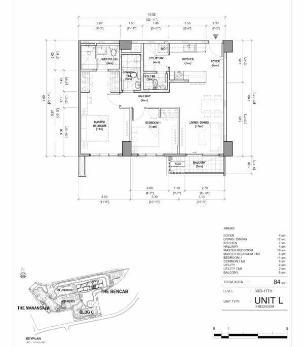
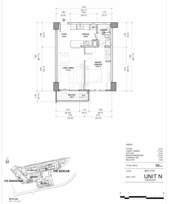
세련됨과 지속 가치를 위해 설계된 1베드룸 주택
콘도미니엄 시장에서 1베드룸 유닛은 꾸준히 가장 선호되는 주거 형태 중 하나입니다.
이들은 젊은 직장인, 신혼·초기 가족부터 안정적인 임대 수익을 원하는 투자자에 이르기까지 다양한 거주자를 끌어들입니다. 더 아우렐리오에서는 스타일과 편안함을 해치지 않으면서 공간 효율을 극대화하도록 정교하게 설계된 1베드룸 콘도 유닛이 다수 마련되어 있습니다.
이는 관리하기 쉽지만 잘 갖춰진 주거 공간을 선호하는 이들과 팜팡가의 성장하는 임대 시장에서 꾸준한 수요를 인식하는 투자자 모두에게 이상적입니다.
더 아우렐리오의 건축과 인테리어는 편안함, 실용성, 절제된 우아함의 원칙을 따릅니다.
평면 배치의 흐름에서 마감재 선택까지 모든 디테일은 기능적이면서도 시각적으로 매력적인 주거 공간을 만드는 데 목적을 두고 있습니다.
오픈 플랜 구조는 내부 배치의 유연성을 제공하며, 넓은 창문은 자연광을 충분히 들여 따뜻하고 매력적인 분위기를 조성합니다.
수납 솔루션은 매끄럽게 통합되어 있으며, 모든 콘도 유닛에는 발코니가 포함되어 있어 재택근무나 홈 모임 등 균형 잡힌 라이프스타일을 지원합니다.

네포 센터 록웰 내 더 아우렐리오의 전략적 우위
네포 센터 록웰의 더 아우렐리오는 전략적 우위를 지니고 있으며, 안헬레스 시의 핵심 입지와 팜팡가의 강력한 부동산 시장을 결합합니다.
더 아우렐리오는 클락 자유무역지대(Clark Freeport Zone)에서 단 몇 분 거리에 위치해 있으며, 확장 중인 클락 국제공항을 통한 향상된 접근성과 NLEX, SCTEX, TPLEX를 통한 메트로 마닐라 및 루손 북부 지역으로의 원활한 이동이 가능합니다.
팜팡가의 성장은 남북 통근 철도(North-South Commuter Railway), 공항 확장, 도로 업그레이드와 같은 주요 인프라에 의해 추진되며, 이는 기업, 외국인 거주자, 현지 전문직 종사자들을 계속해서 유치하여 고급 주거지에 대한 수요를 지속적으로 유지합니다.
팜팡가에서 록웰 라이프의 새로운 장을 시작하세요
투자자에게 더 아우렐리오는 탄탄한 기본기와 잠재적 자본 가치 상승 가능성을 갖춘 전략적 진입 기회를 제공합니다.
주택 소유자와 거주자에게는 장기적 가치를 갖춘 균형 잡힌 생활 환경을 제공합니다.
단순한 주거용 타워를 넘어, 팜팡가의 발전을 반영하며, 세심하게 설계된 콘도 유닛이 활기찬 복합용도 커뮤니티와 통합되어, 네포 센터 록웰에서 새롭게 떠오르는 라이프스타일 허브의 선도적 개발로 자리잡고 있습니다.







